Box / posti auto in vendita

Crotone, Piazza montessori
€ 60.000
1 locale 1 locale
74 Mq 74 Mq

Box / posti auto in vendita

Crotone, Piazza montessori

Descrizione annuncio

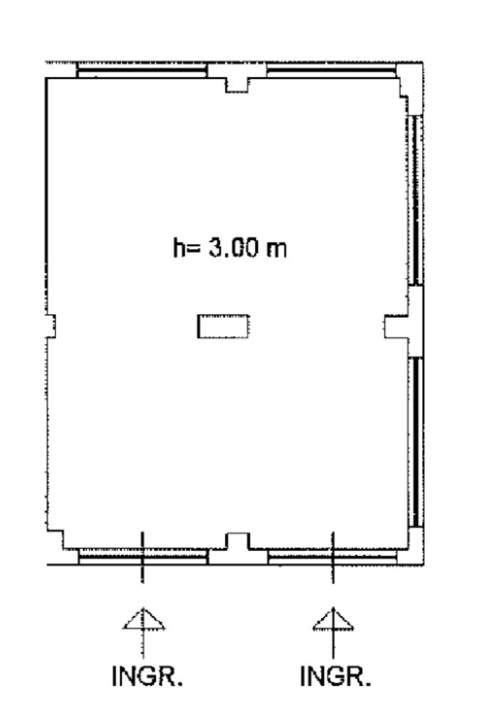
All'interno del quartiere di Tufolo, Piazza Montessori, proponiamo in vendita un ampio locale commerciale di circa 75 mq.

Questo spazio offre una posizione strategica in una zona densamente abitata e ben servita da altre attività commerciali, garantendo un flusso costante di potenziali clienti.

La struttura, è dotata di cinque serrande che si affacciano su tre lati, assicurando un'ottima visibilità e luminosità naturale. All'interno, il locale è organizzato in un unico ambiente spazioso, con un bagno e un antibagno, ideali per accogliere clienti e personale. La facilità di parcheggio nelle vicinanze rappresenta un ulteriore vantaggio per chi desidera avviare o trasferire la propria attività in un contesto dinamico e ben collegato. Un'opportunità da non perdere per chi cerca un investimento solido e funzionale.

Possibilità di visionare l'immobile previo appuntamento telefonico al numero 0962/939083 oppure cell 351 983 4114.

L'ufficio è aperto da lunedi a venerdi dalle 9.00 alle 13.00 e dalle 15.00 alle 19.00 e sabato dalle 9.00 alle 13.00.

Affiliato Tecnocasa Crotone

Via XXV Aprile, 80

88900 Crotone

Mostra tutto

Nelle vicinanze

Trasporto pubblico Trasporto pubblico
stazione di Crotone
stazione di Crotone
2,6 Km
Piazza Saffo
Piazza Saffo
160 m
Tufolo
Tufolo
200 m
Ricariche auto elettriche Ricariche auto elettriche
Charge&CarRental Carrozzeria O.s.car
2,4 Km
Scuole Scuole
Scuole
170 m
Istituto Scolastico Maria Grazia Cutuli
420 m
Istituto tecnico Geometri E. Santoni
710 m
Scuole
740 m
Isitituto Comprensivo Don Milani
1,2 Km
Farmacia Farmacia
Farmacia
120 m
Bianchi
200 m
Megna
1,8 Km
Parafarmacia Modesto
1,9 Km
Farmacia Gualtieri
1,9 Km
Ospedali Ospedali
ASL
290 m
ASP
450 m
Casa di Cura Sant'Anna
1,3 Km
Marrelli Hospital
1,7 Km
Ospedale Civile San Giovanni di Dio
1,9 Km
Supermercati Supermercati
Conté
130 m
Crai
150 m
EuroSpin
1,1 Km
PAM Superstore
1,2 Km
Conad
1,5 Km
Negozi Negozi
Negozi
220 m
Casa Rienzi
230 m
Scalise Sport
1,3 Km
Frutta e verdura
1,3 Km
Russo
1,5 Km
Bar Bar
Morabito
250 m
Bar degli Amici
630 m
La Paranza
1,5 Km
Movida Beach
1,5 Km
La Rosa dei Venti
1,7 Km
Ristoranti Ristoranti
I Vitelloni - Trinacria
150 m
Pizzeria San Paolo
520 m
Ristoranti
900 m
Spaccanapoli
1,5 Km
Fantasy
1,5 Km
Mostra tutto

Caratteristiche

Rif.:
61140991
Piano:
Basso di 5 con ascensore
Totale piani:
5
Arredamento:
Assente
Condizionamento:
Assente
Ascensore:
Mostra tutto
Prezzo Prezzo
€ 60.000
Rata mutuo Rata mutuo
€ 285 / mese
Spese annue Spese annue
€ 170
Proponi il tuo prezzoProponi il tuo prezzo

Classe Energetica

G
G
G
G
G
G
G
G
G
EP globale non rinnovabile:
23.64 kW h/m² anno
EP globale rinnovabile:
9.69 kW h/m² anno
EP invernale del fabbricato:
EP estiva del fabbricato:
Anno di costruzione:
1990
Riscaldamento:
Assente

Ti interessa visionare l'immobile?

Fissa un appuntamento  Fissa un appuntamento

Richiedi informazioni

Clicca su Leggi per aprire l'informativa
* Questi campi sono obbligatori

Calcola il tuo mutuo

Semplice e senza impegno
Anticipo

( % )
Mutuo

( % )

pochi semplici passi

inserisci i tuoi dati
Questionario completato
Grazie per aver richiesto un appuntamento senza impegno con un nostro Consulente del Credito e Assicurativo.

Hai inserito correttamente tutti i dati necessari e a breve riceverai una e-mail con un link da convalidare per inviare i tuoi dati.
Affiliato
Studio Crotone D.I.
Via XXV Aprile, 80 88900 Crotone (KR)

Il nostro staff


  • Tommaso Rocca
    Affiliato

  • Giuseppe Catanzariti
    Collaboratore

  • Samuele Poleo
    Collaboratore

  • Valentina Turtoro
    Coordinatrice

  • Veronica Vona
    Collaboratrice
Via XXV Aprile, 80 88900 Crotone (KR)
Zona: Crotone
Mostra su mappa
Orari: Da lunedì a venerdì dalle 9.00 alle 13.00 e dalle 15.00 alle 19.30 e sabato dalle 9.00 alle 13.00.
Affiliato
Studio Crotone D.I.
Via XXV Aprile, 80 88900 Crotone (KR)

2026 Tecnocasa Franchising S.p.A. - P. IVA 08365160152 - Via Monte Bianco 60/A 20089 Rozzano (MI). Ogni agenzia ha un proprio titolare ed è autonoma. Privacy policy | Policy utilizzo | Cookie policy