Bilocale in vendita

Crotone, Viale Magna Grecia
€ 85.000
2 locali 2 locali
68 Mq 68 Mq
1 bagno 1 bagno

Bilocale in vendita

Crotone, Viale Magna Grecia

Descrizione annuncio

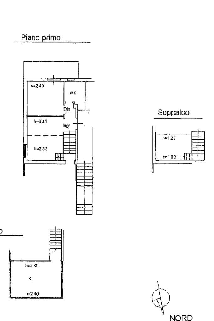
All'interno del Residence Casarossa, è disponibile un appartamento accogliente e funzionale con veranda VISTA MARE.

L'ingresso si apre su un luminoso soggiorno, arricchito da un soppalco che aggiunge un tocco di originalità e spazio extra.

La camera da letto, dotata di un balcone privato, garantisce un angolo di tranquillità e privacy. Il bagno è pratico e finestrato.

Uno dei punti di forza dell'appartamento è la veranda chiusa a vetri, che regala una splendida vista mare e ospita una cucina funzionale, ideale per chi ama cucinare con un panorama suggestivo.

L'immobile è dotato di aria condizionata, assicurando comfort in ogni stagione e un caminetto.

Perfetto per chi cerca una soluzione abitativa oppure una casa vacanza.

Incluso nel prezzo una cantina di proprietà.

Possibilità di visionare l'immobile previo appuntamento telefonico allo 0962/939083 oppure cell 351 983 4114

L'ufficio è aperto da lunedi a venerdi dalle 9.00 alle 13.00 e dalle 15.00 alle 19.00 e sabato dalle 9.00 alle 13.00.

Affiliato Tecnocasa Crotone

Via XXV Aprile, 80

88900 Crotone

Mostra tutto

Nelle vicinanze

Trasporto pubblico Trasporto pubblico
Casa Rossa
Casa Rossa
290 m
La Ronde (Zen)
La Ronde (Zen)
370 m
Bar Bar
Bar
450 m
Zen
490 m
Tortuga
1,0 Km
Palace Beach Resort
1,4 Km
Alexander Summer Gazebo
2,5 Km
Ristoranti Ristoranti
A' Quadara
330 m
The Maida
410 m
Ristoranti
470 m
Don Antonio
670 m
Il Piccantino
880 m
Mostra tutto

Caratteristiche

Rif.:
61172118
Piano:
2 di 2 (Piano medio)
Balconi:
1
Terrazzi:
1
Camere da letto:
1
Arredamento:
Assente
Mostra tutto
Prezzo Prezzo
€ 85.000
Rata mutuo Rata mutuo
€ 404 / mese
Spese annue Spese annue
€ 700
Proponi il tuo prezzoProponi il tuo prezzo
Immobile valutato con T·Valuta

Classe Energetica

C
C
C
C
C
C
C
C
C
EP globale non rinnovabile:
23.64 kW h/m² anno
EP globale rinnovabile:
9.69 kW h/m² anno
EP invernale del fabbricato:
EP estiva del fabbricato:
Anno di costruzione:
1998
Riscaldamento:
Autonomo
Tipo impianto:
A stufa
Tipo alimentazione:
Altro

Ti interessa visionare l'immobile?

Fissa un appuntamento  Fissa un appuntamento

Richiedi informazioni

Clicca su Leggi per aprire l'informativa
* Questi campi sono obbligatori

Calcola il tuo mutuo

Semplice e senza impegno
Anticipo

( % )
Mutuo

( % )

pochi semplici passi

inserisci i tuoi dati
Questionario completato
Grazie per aver richiesto un appuntamento senza impegno con un nostro Consulente del Credito e Assicurativo.

Hai inserito correttamente tutti i dati necessari e a breve riceverai una e-mail con un link da convalidare per inviare i tuoi dati.
Affiliato
Studio Crotone D.I.
Via XXV Aprile, 80 88900 Crotone (KR)

Il nostro staff


  • Tommaso Rocca
    Affiliato

  • Giuseppe Catanzariti
    Collaboratore

  • Samuele Poleo
    Collaboratore

  • Valentina Turtoro
    Coordinatrice

  • Veronica Vona
    Collaboratrice
Via XXV Aprile, 80 88900 Crotone (KR)
Zona: Crotone
Mostra su mappa
Orari: Da lunedì a venerdì dalle 9.00 alle 13.00 e dalle 15.00 alle 19.30 e sabato dalle 9.00 alle 13.00.
Affiliato
Studio Crotone D.I.
Via XXV Aprile, 80 88900 Crotone (KR)

2026 Tecnocasa Franchising S.p.A. - P. IVA 08365160152 - Via Monte Bianco 60/A 20089 Rozzano (MI). Ogni agenzia ha un proprio titolare ed è autonoma. Privacy policy | Policy utilizzo | Cookie policy